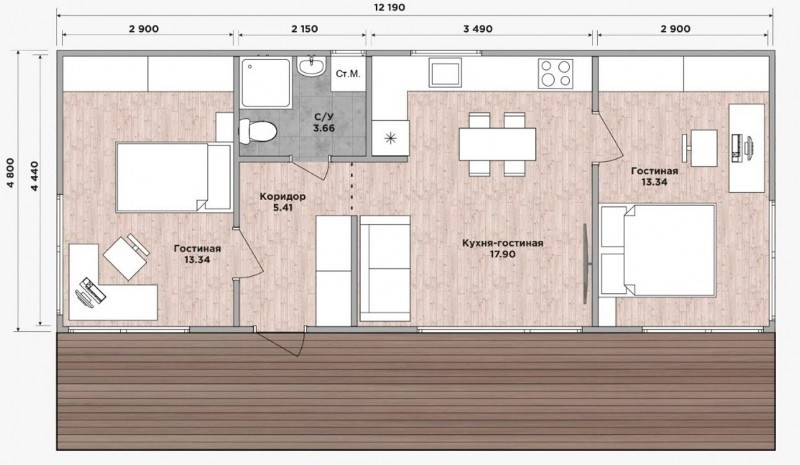
Модульный дом из морского контейнера. Кухня-гостинная и 2 отдельных спальни увеличенной площади. Санузел в керамической плитке. Высота потолков 2,4 м
Дополнительные услуги
*Окрас/каширование выполняется по заданию заказчика;
**Покрытие (цвет, рисунок, вид раскладки) по заданию заказчика.
Выбор местоположения
Мы свяжемся с Вами в течение дня.