ДНК-67 №761

Цена строительства от 4 950 000 ₽* * Стоимость не является окончательной
Заявка на консультацию
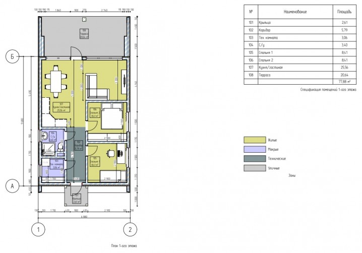
  • Общая площадь 67 м2
  • Длина 12.63 м
  • Ширина 6.88 м
  • Материал стен Каркас
  • Количество этажей 1
  • Подвал Нет
  • Мансарда без мансарды
  • Гараж Нет
  • Терраса Да
  • Проживание Круглогодичное
  • Количество комнат 3
  • Количество спален 2
  • Количество санузлов 1
  • Вид проекта дом
  • Застройщик ДНК-СТРОЙ
  • Архитектурный стиль Барнхаус
  • Отделка фасада Металл
  • Крыша Двускатная
  • Можно купить домокомплект Нет
  • Модульный тип строения Нет
Планировки
Описание проекта

Деревянный одноэтажный дом с двухскатной крышей из 6 модулей. Высокие потолки- 3,5 м. Закрытая терраса- 20 м2. Панормное остекление. Прачечная. Внутренняя отделка white box. Дом идеален для комфортного круглогодичного проживания большой семьи.


Вас может заинтересовать
Вас может заинтересовать

Выбор местоположения

Задать вопрос / написать нам

E-mail: domgis@mail.ru

Мы свяжемся с Вами в течение дня.

Тех. поддержка
Предмет обращения:
Тукущая страница

Мы свяжемся с Вами в течение дня.

Обратный звонок
Обратный звонок
Выберите ваш город
Пожаловаться

Объявление опубликовано.
Изменения сохранены

Период публикации - бессрочный, при условии подтверждения актуальности каждые 50 дней. Уведомления будут отправляться на Вашу электронную почту.

Выберите причину снятия с публикации

Снятые с публикации объявления не участвуют в поиске и недоступны для подробного просмотра.

Для повторной публикации нажмите «Вернуть в публикацию»