Оазис №491

Цена строительства от 4 900 000 ₽* * Стоимость не является окончательной
Заявка на консультацию
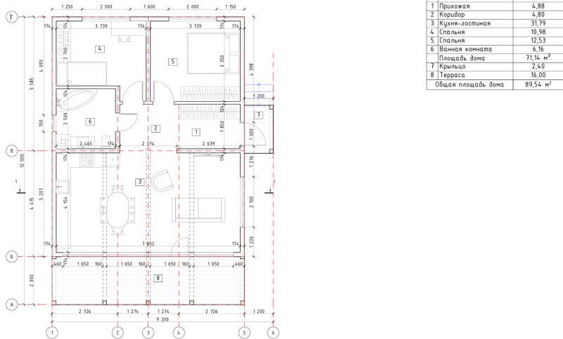
  • Общая площадь 87 м2
  • Длина 12 м
  • Ширина 9.5 м
  • Количество этажей 1
  • Подвал Нет
  • Мансарда без мансарды
  • Гараж Нет
  • Терраса Да
  • Проживание Круглогодичное
  • Количество комнат 3
  • Количество спален 2
  • Количество санузлов 1
  • Вид проекта дом
  • Застройщик МоноЛит
  • Архитектурный стиль Шале
  • Отделка фасада Комбинированная
  • Крыша Двускатная
  • Можно купить домокомплект Да
  • Модульный тип строения Нет
Планировки
Описание проекта

Дом "Оазис" — это уютное и энергоэффективное жилье, построенное по технологии SIP-панелей. Сочетая в себе скорость возведения, экологичность и высокие теплоизоляционные свойства, этот дом идеально подходит для тех, кто ценит практичность и современный дизайн. Высокие потолки, подчеркнутые двускатной крышей, создают ощущение простора, а панорамные окна наполняют интерьер естественным светом.  

Планировка и интерьер

  • Просторная кухня-гостиная с выходом на террасу: сердце дома, где объединены зона приготовления пищи и отдыха. Большие окна "от пола до потолка" открывают вид на природу, визуально расширяя пространство.
  • Две спальни: уединенные комнаты с достаточным метражом для комфортного отдыха. Высокие потолки усиливают ощущение воздушности.
  • Совмещенный санузел: функциональное и эргономичное решение, соответствующее современным стандартам.
  • Прихожая с качественной входной дверью: надежная защита от холода и шума, дополненная стильным дизайном.

Внешний облик и экстерьер

  • Двускатная крыша: классическая форма обеспечивает эффективный сход снега и дождя, а также добавляет дому эстетической завершенности.
  • Фасад из сайдинга: долговечный и неприхотливый в уходе материал, который можно выбрать в любом цвете для подчеркивания индивидуальности.
  • Терраса 16 м²: просторная зона для отдыха на свежем воздухе, доступная прямо из гостиной. Идеальное место для летних обедов или вечерних посиделок.
  • Крыльцо: аккуратное и удобное, завершающее образ дома и обеспечивающее комфортный вход.

Особенности и преимущества

  • Энергоэффективность: SIP-панели гарантируют минимальные теплопотери, снижая расходы на отопление.
  • Панорамное остекление: максимум света и связь с природой, даже в холодное время года.
  • Продуманная планировка: зонирование пространства сочетает приватность спален и открытость общей зоны.
  • Сроки строительства: благодаря технологии SIP, дом возводится в кратчайшие сроки, без потери качества.

Дом "Оазис" — это не просто жилье, а место, где каждая деталь продумана для вашего комфорта. Современный дизайн, экологичные материалы и функциональность делают его идеальным выбором для жизни в гармонии с природой и собой.

Стоимость домокомплекта 2 550 000 рублей

Вас может заинтересовать
Вас может заинтересовать

Выбор местоположения

Задать вопрос / написать нам

E-mail: domgis@mail.ru

Мы свяжемся с Вами в течение дня.

Тех. поддержка
Предмет обращения:
Тукущая страница

Мы свяжемся с Вами в течение дня.

Уведомление
Предмет обращения:
Тукущая страница
Обратный звонок
Обратный звонок
Выберите ваш город
Пожаловаться

Объявление опубликовано.
Изменения сохранены

Период публикации - бессрочный, при условии подтверждения актуальности каждые 50 дней. Уведомления будут отправляться на Вашу электронную почту.

Выберите причину снятия с публикации

Снятые с публикации объявления не участвуют в поиске и недоступны для подробного просмотра.

Для повторной публикации нажмите «Вернуть в публикацию»